Design: bureau SLA
Client: Housing Cooperative De Bonte Hulst
Process management: Steenvlinder
Collaboration: Weever Bouw Kampen, Smartland Landscape Architects, Pieters Bouwtechniek
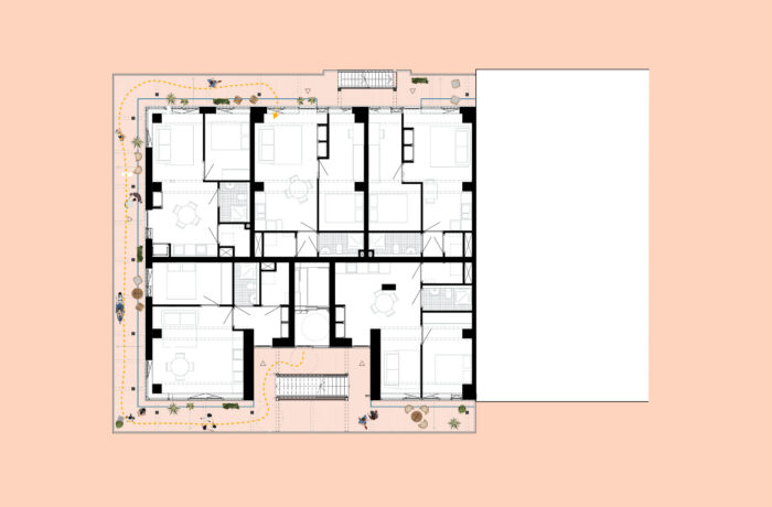
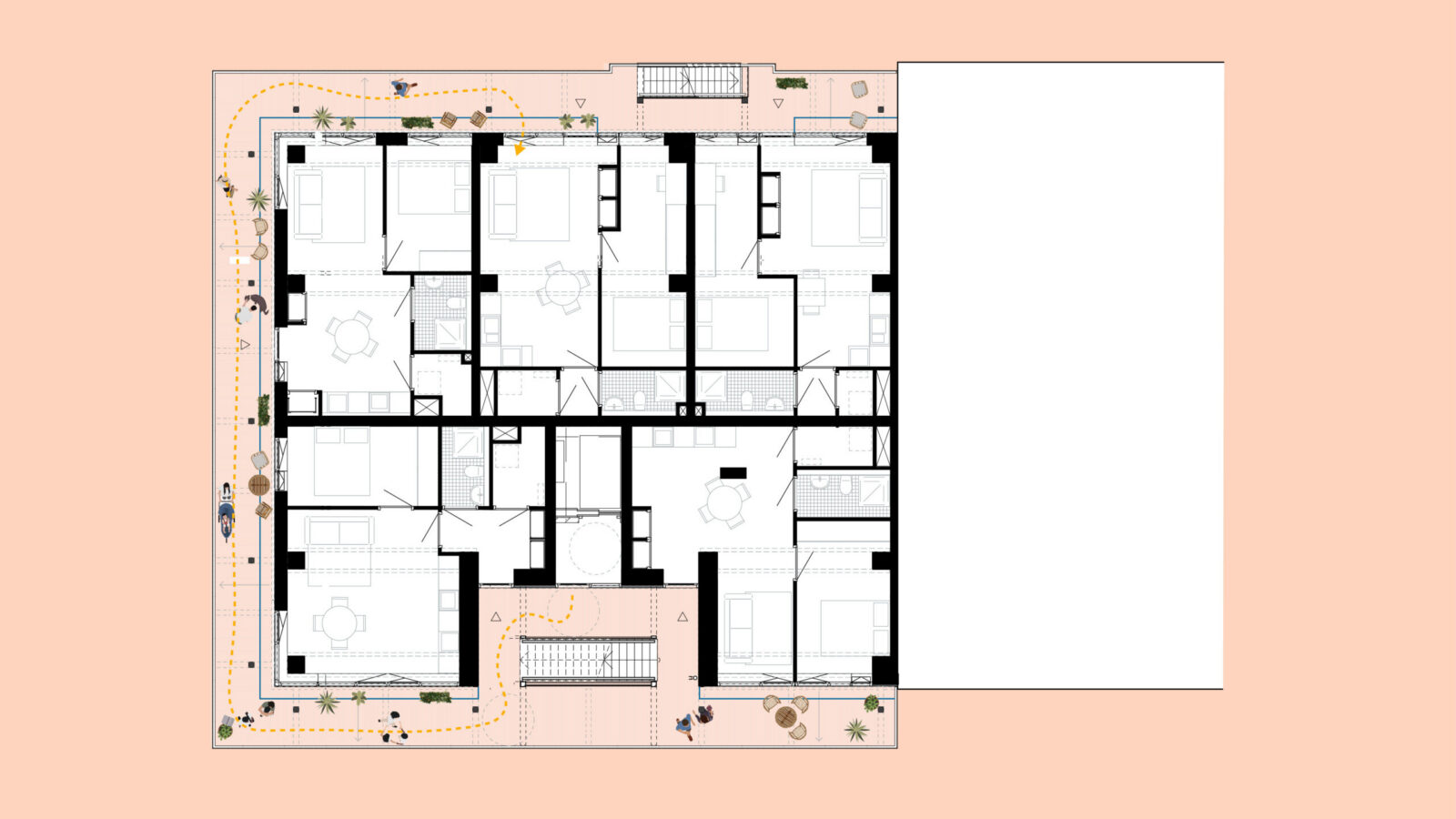
Programme: 35 two- and three-room apartments with shared facilities
Area: 2,400 m² GFA, 2,000 m² NFA
Location: Maps
Status: in development
Design start: 2024
Expected completion: 2028
De Bonte Hulst
De Bonte Hulst
For Housing Cooperative De Bonte Hulst, bureau SLA is designing a collective residential building with 35 two- and three-room apartments. The project will be built in CLT timber construction and designed according to passive house principles. The plan brings together private homes, shared facilities, and circular material applications.
The collective concept of the building has been developed in the design at multiple scales. On the ground floor, there will be a shared space with a kitchen, communal washing machines, and two living rooms connected to the collective garden. In addition, a second shared space and a communal roof terrace are planned on the upper levels of the building. In this way, communal living is given a clear place in the building not only programmatically, but also spatially.
The building has been developed in co-creation with the members of the housing cooperative. As a result, they have played an important role in shaping the floor plans. Through a CLT column-and-beam structure, the homes will also remain adaptable and flexibly configurable in the future.
An important part of the design is the wide living gallery. It serves not only as access, but also as a place where residents can meet and appropriate a space in front of their homes. This sense of appropriation is further encouraged by the columns that define the space. In this way, an intermediate zone is created with room for planting or a bench, while privacy along the windows is also increased. At the same time, this results in cantilevered balconies and a calm horizontal rhythm.
In keeping with the industrial context of Buiksloterham in Amsterdam, bureau SLA has designed a facade using reclaimed ventilation ducts. These ducts are a leftover product from, for example, old office buildings and are generally not reused in their original function. Because they are hot-dip galvanised, they are well suited for exterior application. To investigate their technical and aesthetic potential, a material study was carried out together with other experts. As part of this process, a mock-up was made to test the material, detailing, and appearance.
The development of De Bonte Hulst is being realised in collaboration with various parties. The timber load-bearing structure is being developed with Pieters Bouwtechniek, the passive house concept with Bouwnext, the landscape design with Smartland Landscape Architects, and the construction with Weever Bouw. Process management is being provided by Steenvlinder.
The impressions currently presented show the project in the DO-phase.

















