ontwerp: bureau SLA
opdrachtgever: Wooncoöperatie De Bonte Hulst
procesbegeleiding: Steenvlinder
samenwerking: Weever Bouw Kampen, Smartland Landscape Architects, Pieters Bouwtechniek
programma: 35 twee- en driekamerwoningen met gedeelde voorzieningen
oppervlak: 2400 m2 BVO, 2000 m2 NVO
locatie: Maps
status: in ontwikkeling
start ontwerp: 2024
oplevering verwacht: 2028
De Bonte Hulst
De Bonte Hulst
Voor Wooncoöperatie De Bonte Hulst werkt bureau SLA aan een collectief woongebouw met 35 twee- en driekamerwoningen. Het project wordt uitgevoerd in CLT-houtbouw en ontworpen volgens de passiefhuisprincipes. In het plan komen individuele woningen, gedeelde voorzieningen en circulaire materiaaltoepassingen samen.
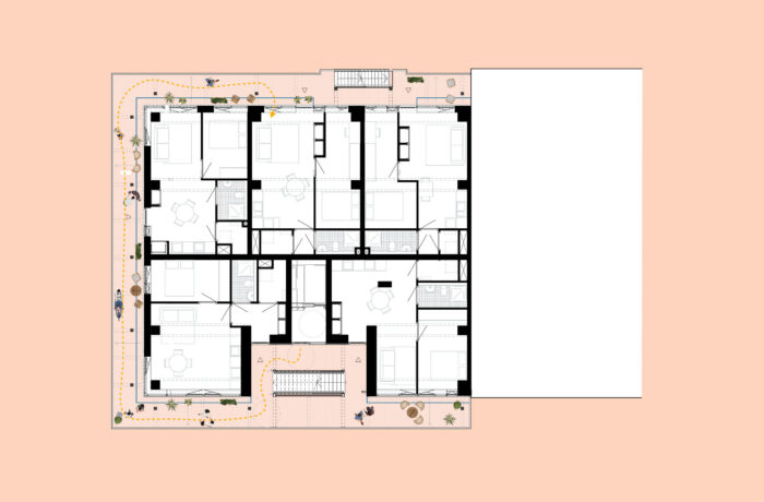
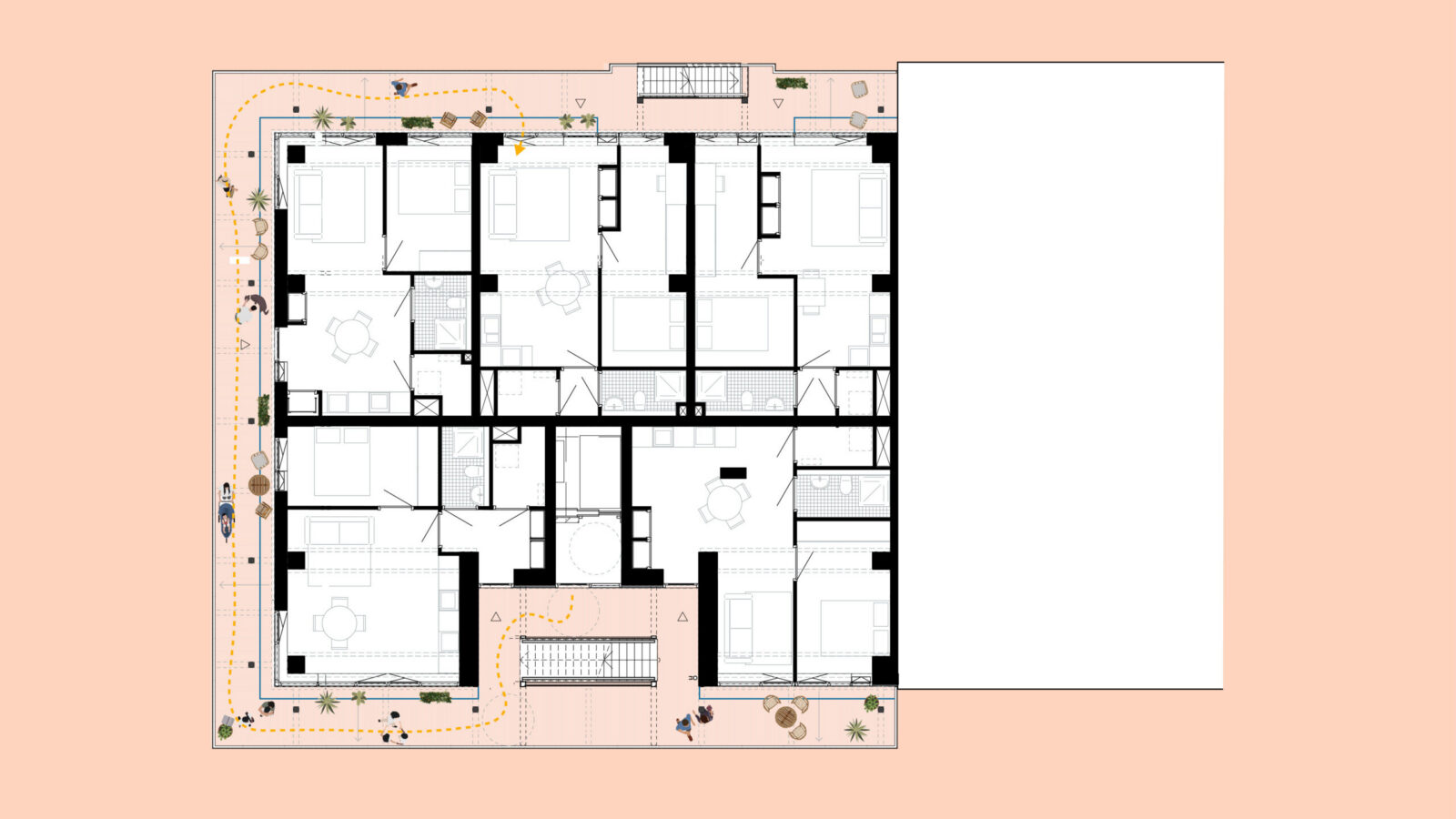
De collectieve opzet van het woongebouw is op verschillende schaalniveaus in het ontwerp uitgewerkt. Op de begane grond komt een gemeenschappelijke ruimte met een keuken, gedeelde wasmachines en twee woonkamers aan de collectieve tuin. Daarnaast zijn boven in het gebouw een tweede gedeelde ruimte en een gemeenschappelijk dakterras voorzien. Daarmee krijgt samenwonen niet alleen programmatisch, maar ook ruimtelijk een duidelijke plek in het gebouw.
Het gebouw is tot stand gekomen in co-creatie met de leden van de wooncoöperatie. Hierdoor hebben zij een belangrijke inbreng gehad in de totstandkoming van de plattegronden. Door middel van een kolommen- en balkenstructuur in CLT zijn de woningen ook in de toekomst aanpasbaar en flexibel indeelbaar.
Een belangrijk onderdeel van het ontwerp is de brede leefgalerij. Die dient niet alleen als ontsluiting, maar ook als plek waar bewoners elkaar kunnen ontmoeten en zich een plek voor hun woning kunnen toe-eigenen. Deze toe-eigening wordt extra gestimuleerd door de kolommen die de ruimte definiëren. Zo ontstaat een tussenzone met ruimte voor bijvoorbeeld beplanting of een bankje, terwijl ook de privacy langs de ramen wordt vergroot. Tegelijkertijd levert dit uitkragende balkons en een rustig horizontaal lijnenspel op.
Passend in de industriële context van Buiksloterham in Amsterdam heeft bureau SLA een gevel ontworpen van gebruikte ventilatiekanalen. Deze kanalen zijn een restproduct uit bijvoorbeeld oude kantoorpanden en worden doorgaans niet in hun oorspronkelijke functie hergebruikt. Doordat ze thermisch verzinkt zijn, lenen ze zich goed voor toepassing in het exterieur. Om de technische en esthetische mogelijkheden daarvan te onderzoeken, is samen met andere experts een materiaalonderzoek uitgevoerd. Daarbij is onder meer een mock-up gemaakt waarin materiaal, detaillering en uitstraling zijn getest.
De uitwerking van De Bonte Hulst wordt gerealiseerd in samenwerking met verschillende partijen. De houten draagconstructie wordt ontwikkeld met Pieters Bouwtechniek, het passiefhuisconcept met Bouwnext, het landschapsontwerp met Smartland Landscape Architects en de realisatie met Weever Bouw. De procesbegeleiding wordt verzorgd door Steenvlinder.
De nu gepresenteerde impressies tonen het project in de DO-fase.

















