design: bureau SLA, Inbo, Overtreders W, Woonpioniers en Boom Landscape
client: Municipality of Utrecht
developer: Vink Bouw
structural engineer: Pieters Bouwtechniek
building services consultant: Adviesbureau DWA,
sustainability & circularity calculations: Adviesbureau DWA,
acoustics: LBP | Sight
theatre consultant: Koen Koch
cultural strategist: DVDL
floor area: circa 9.200 m2 GFA
visualisations: SURREND3R
status: preliminary design
more information: Berlijnplein Utrecht
Berlijnplein
Berlijnplein
A new cultural centre for Utrecht Leidsche Rijn
Berlijnplein in Leidsche Rijn Centrum is the cultural heart of Utrecht’s new urban district. Since 2014, organisations such as RAUM, NUT and Danshuis have helped shape the square into a place where makers, audiences and local residents come together. Commissioned by the Municipality of Utrecht, bureau SLA, Inbo, Overtreders W and Woonpioniers have been working since 2022 on the new Cultuurcluster Berlijnplein. Vink Bouw is the developer and intended builder.
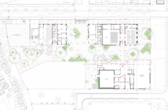
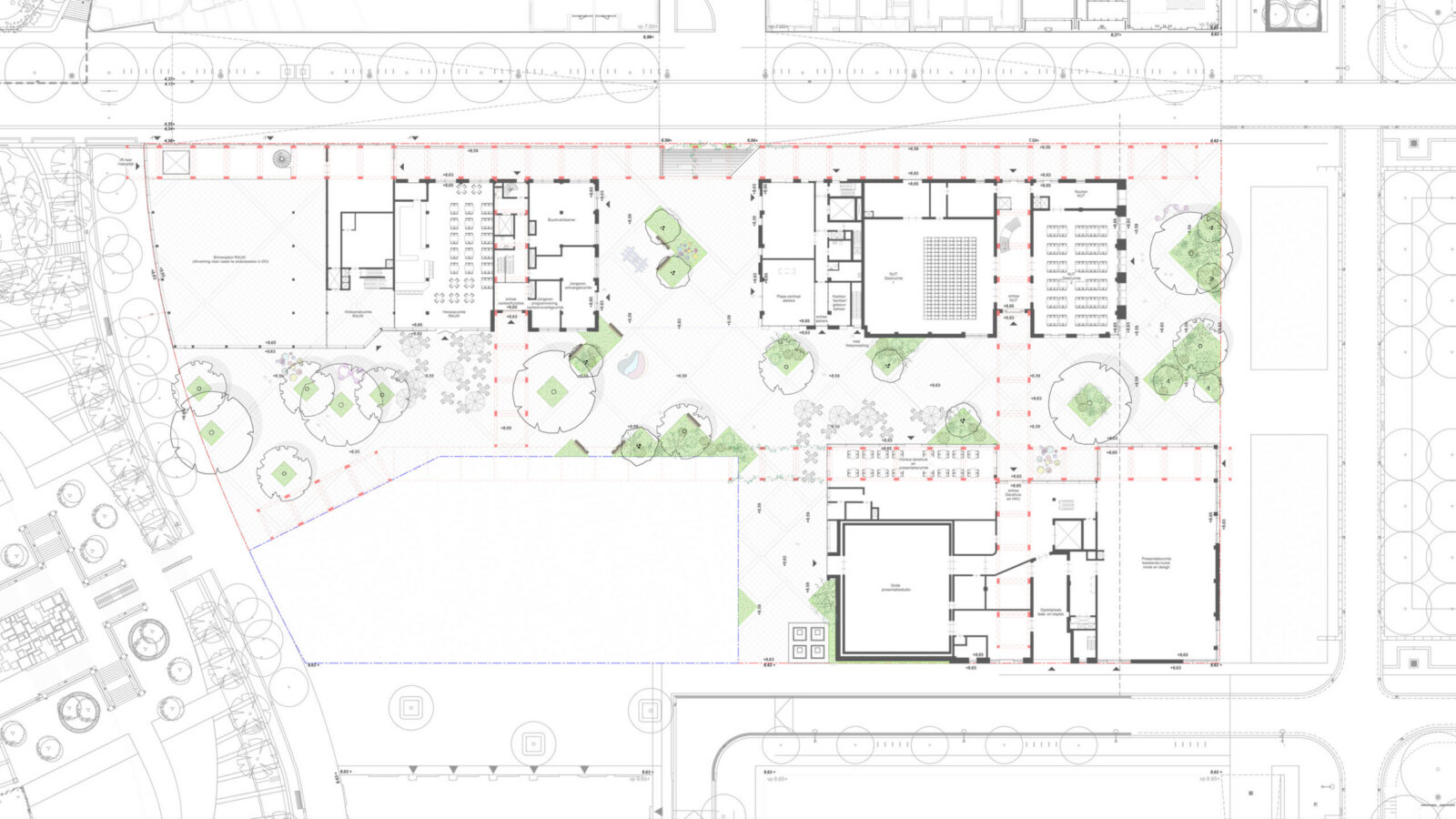
The project comprises approximately 9,200 m² of cultural facilities and nearly one hectare of public space. It will house RAUM, theatre company NUT, and the dance groups 155, Illusionary Rockaz Company and SHIFFT. De Plaatsmaker and Stichting Lou provide workspaces for artists and creative professionals. Other users include consultancy Jonge Honden, design collective Goede Vrijdag, the social organisations BOKS and Buurtwerkkamer, and the University of the Arts Utrecht. Together, these users form the Pleingenoten.
Spatial openness
The Cultural Centre Berlijnplein brings together public programming, workplaces and other creative spaces: presentation studios, music, dance and theatre studios, workshops, offices and exhibition spaces. Rather than creating a closed urban block, the design opens the complex to the city. Inside and outside connect directly. This spatial openness encourages creativity, encounter and exchange. The cluster sits on two important urban axes: the cultural route from Stadsbrouwerij De Noot towards De Vrijstaat, and the north-south connection from the station to the surrounding residential neighbourhoods. The area remains accessible day and night.
Organising framework and circular facade materials
At the heart of the design is a load-bearing framework of red-tinted urban mining precast concrete. This robust structure spans the square, creates coherence, gives the complex a clear identity and marks the entrances. The six buildings stand on, within and alongside this framework. Their façades distinguish themselves from the rest of Leidsche Rijn through the expressive use of high-quality circular materials, including Waste Glaze, Pretty Plastic, Nabasco and tiles made from recycled glass. Because these materials share the same dimensions, the design swaps and recombines them to create a wide range of patterns and compositions. All ground floors are highly transparent: at RAUM you can walk straight in, while at NUT the inside of the theatre hall is visible directly from the square.
Public space and co-creation
The public space acts as a fully fledged stage with a high degree of flexibility. Alongside permanent elements such as terraces, it leaves room for temporary programming including markets, pop-up events and performances.
The design emerged from an intensive co-creation process with all Pleingenoten (users). We shaped the preliminary design for the Cultural Centre Berlijnplein step by step through thematic booklets, team sessions and cluster sessions. This process not only improved the design, but also strengthened the connections between the future users.
The cultural cluster is scheduled for completion in 2028.



























